Inicio Herramientas Diseño de Reformas Equipo Blog Contacto Studio →
Reforma Integral con IA — Salón
Reforma Integral · 72 m² · 6 Estancias

Reforma Integral

Diseño de Reformas con IA LiDAR 3D + IA Generativa
Reforma Integral — Antes y Después con IA

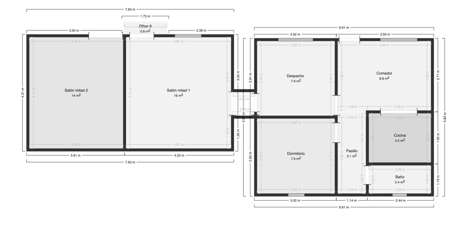
Este es un proyecto real: una vivienda de 72 m² dividida en 6 estancias, documentada con escáner LiDAR 3D antes de la intervención. Cada dimensión, cada ángulo, cada acabado de los renders de IA parte de datos de espacio reales —no de estimaciónes ni de geometrías genéricas.

La IA generativa trabaja sobre esa base de precisión para producir renders fotorrealistas que muestran el mobiliario exacto, los materiales seleccionados y la distribución definitiva. El cliente ve su reforma terminada antes de que empiece la obra, con medidas que cuadran al centímetro.

En el salón y la cocina, el proceso identificó estructuras históricas —vigas centenarias de madera y un arco original de mampostería— que el diseño preservó e integró como elementos protagonistas. La IA no borra el carácter del espacio: lo potencia.

01 Dormitorio 7,9 m²

Espacio deteriorado con mobiliario antiguo transformado en dormitorio moderno con iluminación LED perimetral y acabados en madera natural.

Dormitorio — Antes Dormitorio — Después
Antes Después

Desliza para comparar

Dormitorio — Estado original Original
Dormitorio — Vaciado Vaciado
Dormitorio — Obra finalizada Obra finalizada
Dormitorio — Amueblado Amueblado
02 Salón 30 m² Vigas centenarias preservadas

Dos áreas conectadas con techo de vigas centenarias preservadas. Se retiró el tabique de madera intermedio, duplicando el espacio visual. Suelo de madera, mobiliario contemporáneo y horno etnográfico integrado como elemento patrimonial.

Salón — Antes Salón — Después
Antes Después

Desliza para comparar

Salón — Estado original Original
Salón — Vaciado Vaciado
Salón — Obra finalizada Obra finalizada
Salón — Amueblado Amueblado
03 Despacho 7,9 m²

Habitación con humedades y carpintería deteriorada convertida en espacio de trabajo funcional con estantería integrada y nuevas puertas y ventanas.

Despacho — Antes Despacho — Después
Antes Después

Desliza para comparar

Despacho — Estado original Original
Despacho — Vaciado Vaciado
Despacho — Obra finalizada Obra finalizada
Despacho — Amueblado Amueblado
04 Cocina 4,2 m² Arco original preservado

Cocina antigua con muebles verdes transformada en cocina moderna en L con encimera de madera natural, azulejo subway y arco original preservado.

Cocina — Antes Cocina — Después
Antes Después

Desliza para comparar

Cocina — Estado original Original
Cocina — Vaciado Vaciado
Cocina — Obra finalizada Obra finalizada
Cocina — Amueblado Amueblado
05 Comedor / Entrada 8,8 m²

Mesa extensible para 4-6 personas con conexión visual a la cocina a través del arco original. Iluminación decorativa.

Comedor / Entrada — Antes Comedor / Entrada — Después
Antes Después

Desliza para comparar

Comedor / Entrada — Estado original Original
Comedor / Entrada — Vaciado Vaciado
Comedor / Entrada — Obra finalizada Obra finalizada
Comedor / Entrada — Amueblado Amueblado
06 Baño 2,4 m²

Renovación completa: ducha de obra, mueble de lavabo suspendido y tonos neutros con acabados en madera.

Baño — Antes Baño — Después
Antes Después

Desliza para comparar

Baño — Estado original Original
Baño — Vaciado Vaciado
Baño — Obra finalizada Obra finalizada
Baño — Amueblado Amueblado

Arrastra para navegar por el espacio real escaneado con LiDAR 3D. Cada dimensión es exacta.

Ortofoto LiDAR — Reforma Integral
Ortofoto LiDAR
Plano vectorial — Reforma Integral
Plano vectorial
Vista 3D LiDAR en ángulo — Reforma Integral
Vista 3D LiDAR

Quieres algo así para tu proyecto?

Escaneamos tu espacio con LiDAR 3D, generamos renders fotorrealistas con dimensiones exactas y te mostramos tu reforma terminada antes de empezar la obra. Elige estilos, comparte referencias y recibe tu proyecto personalizado.

Solicitar proyecto Soy contratista Empieza a diseñar tu reforma →

Tienes un proyecto?

Cuentanos tu vision y te respondemos en menos de 24 horas.

Por favor, introduce tu nombre.

Por favor, introduce un email valido.

+34 822 272 161  ·  info@eficiencial.com